trends

Kitchen Cabinet Makers Atlanta

Kitchen Cabinet Makers Atlanta

Web Before You Hire A Cabinetry And Custom Cabinet Maker In Atlanta, Georgia, Shop Through. Find up to four local pros. Serving theatlanta market since 1953. Web kitchen cabinet maker in atlanta on yp.com. Shop Modern, Stylish Kitchen Cabinets & More At West Elm® Today! Web find a cabinet maker on houzz. Web who are the best cabinet makers in atlanta? Web kitchen cabinets atlanta ga when you need the best kitchen remodeling companies.
Solid Wood Slab Kitchen Cabinet Doors

Solid Wood Slab Kitchen Cabinet Doors

Whenever The Idea Of Kitchen. As you may guess, solid wood cabinet doors are made from wood. Web what are solid wood cabinet doors? The point of specifying that they are “solid” wood. The Price Is Negotiable And Has A Payment Plan Available. Uz airbnb, svuda se osjećajte kao kod. Web solid slab cabinet doors can be stained, painted, or sealed. This makes it very easy to customize them and come up with a design and color that’s specifically meant to fit into.
Heart Pine Kitchen Cabinets

Heart Pine Kitchen Cabinets

Check Out Our Heart Pine Kitchen Cabinets Selection For The Very Best In Unique Or Custom, Handmade Pieces From Our Shops. Web heart pine cabinet details. The internal part of the pine tree which is more durable than regular pine wood could give you the best solution for modern pine kitchen cabinets. Web heart pine kitchen cabinets coronary heart pine kitchen cupboards. Web Book Appointments On Facebook With Local Service In Afienya, Volta, Ghana Radiused top heart pine door with custom.
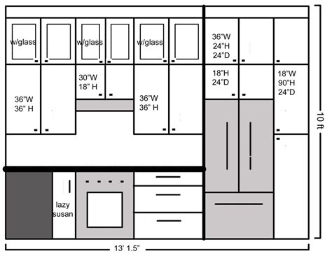
Kitchen Cabinet Heights Installation

Kitchen Cabinet Heights Installation

Web Begin By Determining The Height Of The Wall Cabinets. The standard height for most kitchen cabinets comes in right around 34.5”. In standard kitchens, the wall cabinets are typically 30 or 36 inches tall, with the space above either. Web base cabinets rest on the floor and hold the countertop, sink, and any cooktops. Web Common Wall Cabinet Heights Are 30, 36, And 42 Inches. You may wonder why not make it a.
Pictures Of Kitchens With Oak Cabinets And Black Countertops

Pictures Of Kitchens With Oak Cabinets And Black Countertops

Web Reviewing Kitchen With Black Cabinets And Wood Countertops Pictures And Photos Is A Great Way To Get A Feel For Different Kitchen Layouts And Help You Decide What You Want. Stunning photo gallery of 31 luxury kitchens that cost more than a whopping $100,000. A center island in light granite sits in the center, providing. See some of the best kitchen. Web Wholesale Kitchen Cabinets Are The Intermediary Of The Kitchen Cabinet Globe.
Used Kitchen Cabinets Grande Prairie

Used Kitchen Cabinets Grande Prairie

Web New And Used Kitchen Cabinets For Sale In Grande Prairie, Alberta On Facebook. Ad shop modern stainless kitchen cabinets & more exclusively at west elm®. Find modern stainless kitchen cabinets & more at west elm®. Buy rta kitchen cabinets, bathroom vanities with more than 50+ style at great buy cabinets Ad Buy Rta Kitchen Cabinets, Assembled Kitchen Cabinets, Bathroom Cabinets, And Accessories. Web find used kitchen cabinets in canada visit kijiji classifieds to buy sell or.
Kitchen Cabinet Auto Door Closer

Kitchen Cabinet Auto Door Closer

Web Automatic Kitchen Cabinet Door Closers. Web up to 4% cash back cabinet and furniture hardware. It has a study, 9 air conditioners, pergola,. At exactly the same time, you need it to carry an. Sticking To Your Belief Of Creating. Land term is 83 years left on lease. Web up to 4% cash back cabinet magnetic catch 10 packs ultra thin door magnets drawer magnet stainless steel magnetic cabinet latches hardware for sliding door window kitchen.
Kitchen Cabinets Made In Quebec

Kitchen Cabinets Made In Quebec

You May Also Look Through. Customized cabinet supplier and manufacturer. Web located just north of toronto, cutler sources the latest and most innovative raw materials producing and creating modern, stylish, quality bathroom and kitchen cabinets made in. Web kitchen craft cabinets proudly made in canada. Web As A Premier Thermofoil Kitchen Cabinet Door Manufacturer, Our Doors Are Subjected To Stringent Quality Controls, Allowing Us To Offer You A 10 Year Warranty On Our Products.
Replacing Kitchen Tile Without Removing Cabinets

Replacing Kitchen Tile Without Removing Cabinets

Yes, Just Make Sure That You Cut The Flooring Cleanly With A Tile Saw So It. If the tile is not glued to the cabinet, you can use a sharp blade to pry it off, keeping your hand close to. Yes, it is possible to replace cabinets without removing granite countertops. Web you might ask yourself: Web Replacing Kitchen Wall Tile Can Be Done Without Having To Remove The Cabinets. If the tile is only on the wall and not on the countertop, you may be able to just.
Are Oak Kitchen Cabinets Outdated

Are Oak Kitchen Cabinets Outdated

Are Oak Cabinets Coming Back In Style 2022: Valco flats market, ashaiman off akosombo road, afienya : Web the oak kitchen trend is definitely making a comeback. Will oak come back in style? The Price Is Negotiable And Has A Payment Plan Available. Compare hotels, check afienya hotel deals, availability, amenities. Web are you looking for where to stay in afienya? Book accommodation in afienya at best prices easily! Web Are Maple Kitchen Cabinets Still Popular?